フロアマップ

トップページフロアマップ


遊空間がざびぃ 外観図 内観図 平面図(クリックで拡大します)


がざびぃ外観

入り口

階段

控え室

フロア1

フロア2

フロア3

フロア4

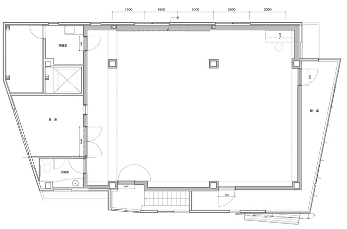
遊空間がざびぃ 平面図

遊空間がざびぃ平面図 pdfファイル

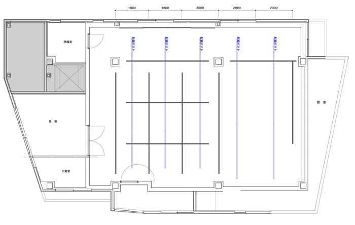
遊空間がざびぃ バトン図

遊空間がざびぃバトン図 pdfファイル

参考客席配置「赤鬼」平面図
舞台美術:寺岡崇

「赤鬼」平面図 pdfファイル

ツォルク砂丘「どうしても行けない国」平面図 
舞台美術:沖崎太郎

「どうしても行けない国」平面図 pdfファイル

参考客席配置「寓想雑貨店」(3rd.)平面図 
舞台美術:野原裕司

「寓想雑貨店」(3rd.)平面図 pdfファイル

参考客席配置「寓想雑貨店」(4th.)平面図 
舞台美術:野原裕司

「寓想雑貨店」(4th.)平面図 pdfファイル

参考客席配置 ライヴ・イヴェント 平面図 
舞台デザイン:ノコノコデザイン

「ライブ・イヴェント平面図 pdfファイル